Bouwnummer 127

Terug naar overzicht
Het Hof van Lucard

Bouwnummer 127

24070 Ext Hof Van Lucard Type K Bb 16B V02 (4)
/

Locatie

Nieuwe-Tonge

Type woningen

Eengezinswoning

Prijs

€ 284.000,- Vrij op naam

Status

Verkocht

Estate Logo
Omschrijving

Acht woningen die met recht uniek genoemd kunnen worden. De meest voordelige woning in dit project kent een rijk en gevarieerd gevelbeeld. De straat heeft een chique uitstraling en is ingericht met compacte en slim ingerichte woningen. Alle huizen hebben een riante tuin voorzien van een tuinberging. Aan uw energierekening is ook gedacht: de woningen zijn voorzien van een warmtepomp, zijn gasloos en beschikken over vloerverwarming. Luxe wonen voor aantrekkelijk bedrag.

Bouwnummer 127

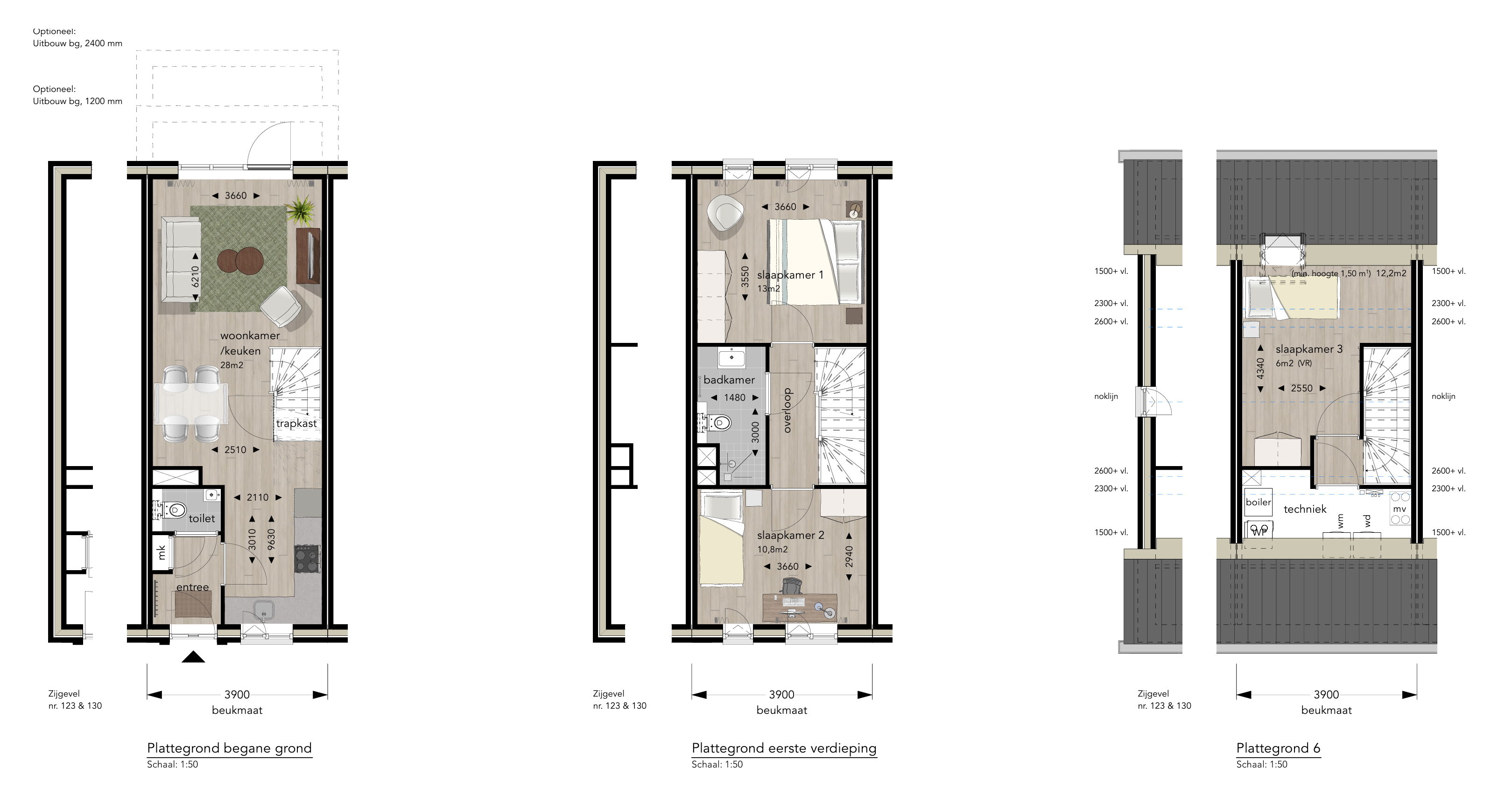
Indeling

Begane grond 

• entreehal 
• meterkast
• toiletruimte
•  woonkamer met open trap
• keuken

Achtertuin op het  noordoosten voorzien van tuinberging

Eerste verdieping 

•   overloop
•   slaapkamer 1
•   slaapkamer 2
•   badkamer met inloopdouche, wastafel  en tweede toilet

Tweede verdieping 

•  overloop
•  slaapkamer 3
•  technische ruimte met witgoed- aansluitingen

Kenmerken

Prijs € 284.000,- Vrij op naam
Perceel
Type
Perceel oppervlakte
Tuinligging

Eengezinswoning
96m2
Noordoosten
Opstallen
Bouwjaar
Woonoppervlakte
Inhoud
Isolatie
CV-ketel
Energielabel
Bijgebouwen
 
2024
80m2
255m3
Volledig geïsoleerd
warmtepomp
Ja
Berging
interesse

Heeft u interesse in een woning, schrijf u dan in. Dan houden we u op de hoogte.

Bouwnummer 127

Plattegrond woning

Schermafbeelding 2024 06 18 171431 (3)
Bouwnummer 127

Ligging van de woning

Plattegrond
Brochure

Bekijk de online brochure

Brochure

Voor het bekijken van onze bladerbare brochure wordt u doorgelinkt naar de website issuu.com.

Bekijken brochure 1 Bekijken brochure 2
Brochure
Omlaag