Introductie

Ouddorp Bad - Ouddorp

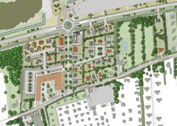
De missende schakel tussen strand, duinen en de gezellige badplaats Ouddorp

Estate Invest

Nadere Toelichting Ouddorp Bad Oost

De door ons voorgestane ontwikkeling Ouddorp Bad Oost betreft een ontwikkeling welke al menig jaar geleden is ingezet. In de afgelopen jaren hebben wij de raadsleden meerdere malen ingelicht en geïnformeerd omtrent de voortgang van deze ontwikkeling. Wij begrepen dat er vanuit de raad behoefte is aan nadere informatie omtrent de huidige stand van de procedure, daar er veel misvattingen zijn. Reeds in een eerder stadium hebben wij een uiteenzetting gemaakt, welke wij thans hebben geactualiseerd ten einde een volledig overzicht te verschaffen.

 

Klik op onderstaande link voor meer informatie:

https://issuu.com/estate.invest/docs/nadere_toelichting_ouddorp_bad_oost_30-11-2021 

Schermafbeelding 2021 06 25 Om 14.18.23
Omlaag