Introductie

't Gooye - Dirksland

‘t Gooye, exclusief landelijk wonen!

bekijk het Aanbod

02 Vrije kavels

Estate Invest

Start verkoop 't GOOYE!

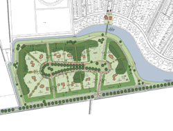
Wij zijn verheugd u te kunnen mededelen dat wij van start gaan met de verkoop van 12 royale bouwkavels in De Smalle Gooye, wat nu is omgedoopt tot 't GOOYE.

Oppervlakte kavels variëren van 2.294 m2 tot 5.855 m2. Prijzen zijn vanaf 350.000 euro vrij op naam.

Schermafbeelding 2021 07 02 Om 14.58.48
interesse

Heeft u interesse in een woning, schrijf u dan in. Dan houden we u op de hoogte.

Selecteer een project
  • Everdinapolder - eengezinswoningen
  • Everdinapolder - levensloopwoningen
  • Everdinapolder - appartementen
  • Swaen
  • Zandweg Achthuizen fase II
  • Het Hof van Lucard
  • Ouddorp Bad
  • 't Gooye
  • Molenpolder
  • De Rugghe
  • De Oude Werf
  • De Nieuwe Gooye
  • Parel van de Delta
  • Polderzicht
  • De Nieuwe Oostdijk fase 1
  • Fletcher strandhotel Haamstede
  • Fletcher hotel Duinzicht
  • Groene Zoom
  • Zandweg Achthuizen fase I
  • Tuinstraat Dirksland
  • Nollepolder
  • Tweede Thuis
  • Windlust
  • De Nieuwe Oostdijk fase II
  • Molenzicht
  • Wonen in het Oudeland
  • 't Kwetternest
  • Heenvliet West
  • Het Hof van Lucard Fase 2
  • Voormalig campingterrein
  • Halfweg Spijkenisse
  • Caapse Vaan
  • Roer-Barbizonlaan
  • Sperwer
  • Noordrand
  • Hotel Spakenburg
  • Hotel De Poort van Willemstad
Omlaag